Las disposiciones de espacios interactivas y de preferencia de Philips están diseñadas para ayudar a arquitectos, ingenieros y contratistas, así como también al personal de las instalaciones, a entender las implicaciones básicas de la instalación de un sistema de imágenes de Philips. Aquí encontrará acceso a disposiciones de espacio descargables en formato PDF y en los casos que está disponible, en formato DWG e IRL PDF. Tenga en cuenta que, aunque son muy útiles, los archivos descargables de esta sección no son específicos de un centro o idóneos para propósitos licitatorios.

Nuestros paquetes de plano le suministrarán una mirada a:
Cada IRL incluye:
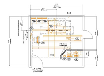
En algunos casos puede no estar familiarizado con el equipo de imágenes que su institución piensa instalar. Nuestras disposiciones de espacio interactivas en 3D (IRL, por sus siglas en inglés para Interactive room layout) le permiten ver el equipo como se ve en una disposición de espacio estándar.
Nota: la descarga puede tomar algunos minutos debido a su tamaño.

You are about to visit a Philips global content page
Continue